Casa indipendente in vendita

Venezia, Via Campalton - Campalto
€ 450.000
4 locali 4 locali
195 Mq 195 Mq
2 bagni 2 bagni

Casa indipendente in vendita

Venezia, Via Campalton - Campalto

Descrizione annuncio

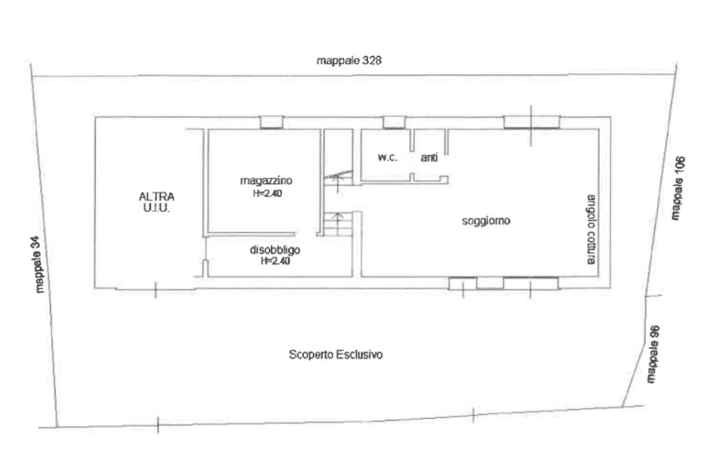
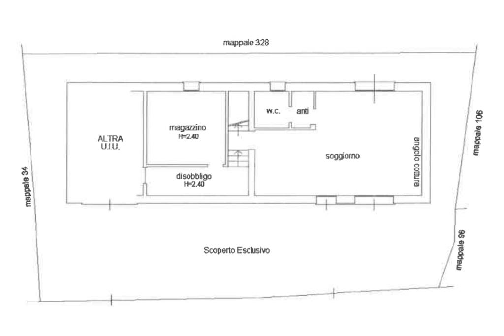
CAMPALTO_ Villa singola su due livelli, tre camere, due bagni, terrazza solarium, magazzino e garage al piano terra.

In una laterale tranquilla di via Orlanda proponiamo una casa singola di nuova costruzione, terminata nel 2025 e disposta su due livelli. La posizione è comoda ai mezzi pubblici per raggiungere Venezia, ma al tempo stesso offre la tranquillità e il silenzio di un quartiere residenziale. Una soluzione moderna ed efficiente, ideale per chi desidera coniugare comfort, risparmio energetico e qualità abitativa.

La villetta, in classe energetica A4, è dotata di pannelli fotovoltaici da 6 kWh, cappotto esterno, serramenti in doppio vetro, pompa di calore e climatizzazione completa, garantendo alte prestazioni e consumi contenuti.

Al piano terra si sviluppa un’ampia e luminosa zona giorno open space di oltre 40 mq, dove soggiorno e cucina si fondono in un unico ambiente accogliente e funzionale, ideale per momenti conviviali in famiglia o con gli amici. Completa il piano un bagno finestrato con box doccia, un antibagno e un magazzino di generose dimensioni, perfetto come spazio di lavoro o di appoggio.

Salendo al primo piano si trova la zona notte, composta da una camera matrimoniale, due camere singole e un secondo bagno finestrato con vasca. Da qui si accede anche a un’ampia terrazza solarium di circa 40 mq, uno spazio ideale per pranzi e cene all’aperto o per rilassarsi in totale privacy.

All’esterno, un grande giardino privato circonda la casa e rappresenta un valore aggiunto per chi ama vivere all’aria aperta, organizzare feste o semplicemente godersi la tranquillità delle giornate estive. Al piano terra la proprietà comprende anche un comodo garage per macchine di medie dimensioni.

Una soluzione completa, nuova e pronta ad accogliere chi cerca un’abitazione indipendente, moderna ed efficiente, in una posizione strategica a pochi minuti da Venezia.

Mostra tutto

Nelle vicinanze

Trasporto pubblico Trasporto pubblico
Monte Celo
Monte Celo
2,2 Km
Cervino
Cervino
2,7 Km
Orlanda Casilina
Orlanda Casilina
130 m
Orlanda Don Vecchi
Orlanda Don Vecchi
310 m
Ricariche auto elettriche Ricariche auto elettriche
Venezia Campalto | EnelX
420 m
Trattoria Al Passo
910 m
ParkinGO Venezia
1,4 Km
Favaro S. Maurizio | EnelX
2,5 Km
Mestre Parcheggio Porta gialla | EnelX
2,9 Km
Scuole Scuole
Istituto Comprensivo Statale "A. Gramsci"
440 m
Scuola Elementare R. Fucini
2,3 Km
Scuola Primaria Collodi
2,4 Km
Istituto comprensivo Ilaria Alpi: Scuola Statale dell'Infanzia "Elena Cornaro"
2,6 Km
Scuola media "G. Volpi"
2,8 Km
Farmacia Farmacia
Farmacia Patelli
370 m
Farmacia Serenissima
1,4 Km
Farmacia
2,4 Km
Farmacia all'Aeroporto
2,5 Km
Farmacia Boscolo
2,6 Km
Supermercati Supermercati
Coop
560 m
Lidl
1,7 Km
Ali Supermercato
2,2 Km
Famila Superstore
2,6 Km
iN's
2,7 Km
Negozi Negozi
Marilena
580 m
Panificio
910 m
Panificio Bardi
1,4 Km
Negozi
2,4 Km
Bar Bar
Cubic
540 m
Green Café
2,9 Km
Ristoranti Ristoranti
Trattoria da Vittoria
560 m
Bar Pizzeria Ristorante Albachiara
720 m
Trattoria Al Passo
890 m
Pizzeria Griglieria Colors
1,1 Km
Ristorante Yuppies
1,7 Km
Mostra tutto

Caratteristiche

Rif.:
61133017
Piano:
1 di 2 (Piano su più livelli)
Box:
1
Terrazzi:
1
Camere da letto:
3
Arredamento:
Assente
Mostra tutto
Prezzo Prezzo
€ 450.000
Rata mutuo Rata mutuo
€ 2.146 / mese
Spese annue Spese annue
€ 0
Proponi il tuo prezzoProponi il tuo prezzo

Classe Energetica

Questo immobile è esente da classe energetica
Anno di costruzione:
2020
Riscaldamento:
Autonomo
Tipo impianto:
A radiatori
Tipo alimentazione:
Metano

Ti interessa visionare l'immobile?

Fissa un appuntamento  Fissa un appuntamento

Richiedi informazioni

Clicca su Leggi per aprire l'informativa
* Questi campi sono obbligatori

Calcola il tuo mutuo

Semplice e senza impegno
Anticipo

( % )
Mutuo

( % )

pochi semplici passi

inserisci i tuoi dati
Questionario completato
Grazie per aver richiesto un appuntamento senza impegno con un nostro Consulente del Credito e Assicurativo.

Hai inserito correttamente tutti i dati necessari e a breve riceverai una e-mail con un link da convalidare per inviare i tuoi dati.
Affiliato
Mes3 Sas
Via San Donà, 101 30124 Venezia (VE)

Il nostro staff


  • Alberto Boni
    Collaboratore

  • Enrico Causin
    Responsabile

  • Matthew De Rossi
    Collaboratore

  • Panfilo Ginestra
    Collaboratore

  • Jacopo Mura
    Affiliato

  • Ilaria Pellizzaro
    Coordinatrice
Via San Donà, 101 30124 Venezia (VE)
Zona: Venezia-Mestre-Carpenedo
Mostra su mappa
Affiliato
Mes3 Sas
Via San Donà, 101 30124 Venezia (VE)

2026 Tecnocasa Franchising S.p.A. - P. IVA 08365160152 - Via Monte Bianco 60/A 20089 Rozzano (MI). Ogni agenzia ha un proprio titolare ed è autonoma. Privacy policy | Policy utilizzo | Cookie policy