Casa semindipendente in vendita

Venezia, Via Monte Bianco - Favaro Veneto
€ 300.000
Prezzo aggiornato
4 locali 4 locali
195 Mq 195 Mq
2 bagni 2 bagni

Casa semindipendente in vendita

Venezia, Via Monte Bianco - Favaro Veneto

Descrizione annuncio

Proponiamo in vendita una porzione di trifamiliare situata in una tranquilla strada chiusa, lontana dal traffico ma allo stesso tempo in posizione strategica e comoda ai principali servizi, con facile accesso a mezzi pubblici, tangenziale, negozi e supermercati.

L’abitazione si sviluppa su due livelli ed è circondata da un giardino privato di piacevoli dimensioni che dona riservatezza e vivibilità agli spazi esterni.

Al piano terra si trova la zona giorno, composta da un ampio e luminoso soggiorno con caminetto — elemento che conferisce calore e accoglienza all’ambiente — separato dalla cucina abitabile. Completa il piano un bagno finestrato dotato di lavabo, wc e bidet.

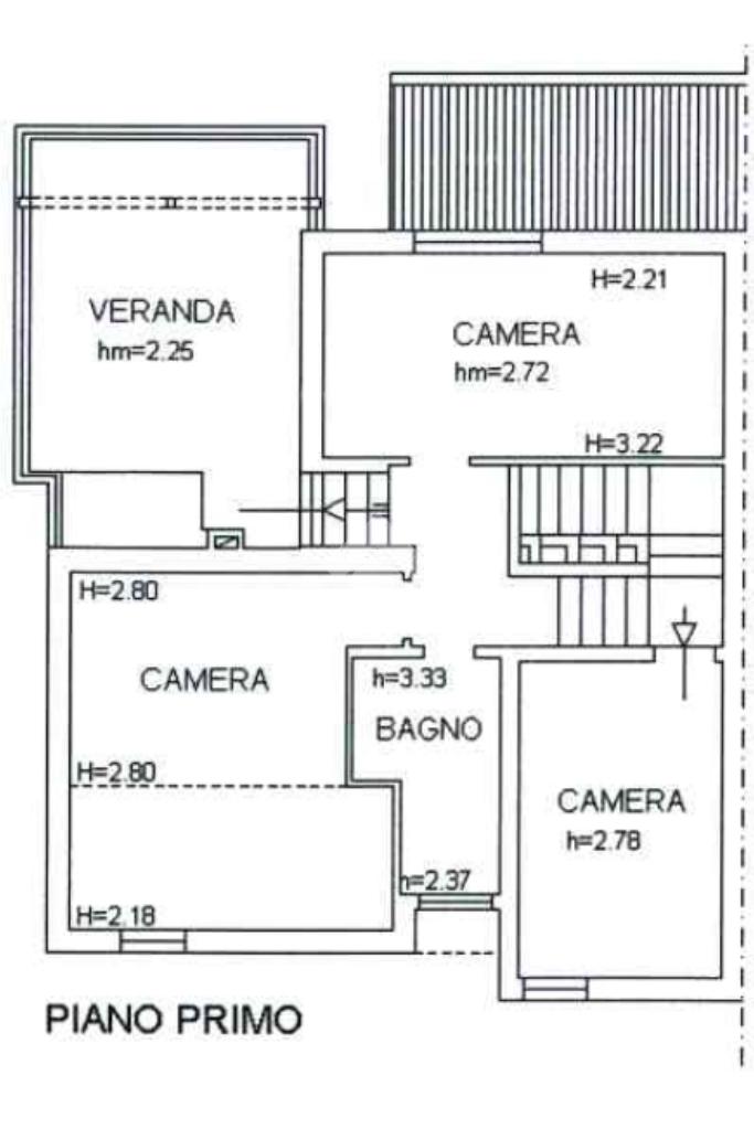
Salendo al piano superiore, la zona notte è composta da tre camere (una matrimoniale e due singole), tutte caratterizzate da ottima esposizione solare e buona luminosità per tutto l’arco della giornata. Sullo stesso livello si trova un secondo bagno finestrato, di generose dimensioni e completo di box doccia.

All’ultimo piano è presente una veranda esclusiva, ideale come spazio studio, zona hobby o ambiente di servizio per la casa.

Completano la proprietà un garage di pertinenza, situato al piano terra, adatto al parcheggio di un’auto di medie dimensioni.

L’immobile ha beneficiato di interventi di ristrutturazione parziale nel 2022/2023, che hanno riguardato il rifacimento dei bagni, la nuova pavimentazione al piano terra e l’aggiornamento dell’impianto elettrico ed idraulico.

Mostra tutto

Nelle vicinanze

Trasporto pubblico Trasporto pubblico
Venezia Carpenedo
Venezia Carpenedo
2,2 Km
Cervino
Cervino
140 m
Pineta
Pineta
700 m
San Donà Cervino
San Donà Cervino
130 m
Cervino
Cervino
140 m
Ricariche auto elettriche Ricariche auto elettriche
Favaro S. Maurizio | EnelX
470 m
Mestre Garibaldi | EnelX
2,1 Km
Parcheggio scambiatore Santa Maria dei Battuti | EnelX
2,3 Km
Sede Enel Mestre | EnelX
2,4 Km
Parcheggio Santa Maria dei Battuti | EnelX
2,5 Km
Scuole Scuole
Scuola media "G. Volpi"
400 m
Scuola elementare "Diego Valeri"
430 m
Scuola Elementare R. Fucini
690 m
Istituto comprensivo Ilaria Alpi: Scuola Statale dell'Infanzia "Elena Cornaro"
730 m
Spallanzani
780 m
Farmacia Farmacia
Farmacia Boscolo
180 m
Farmacia
450 m
Farmacia Rialto
1,0 Km
Farmacia comunale n. 3 "Al Bivio"
1,1 Km
Farmacia Gumirato
1,5 Km
Ospedali Ospedali
Policlinico San Marco
2,4 Km
Supermercati Supermercati
Supermercati Maxi
160 m
Ali Supermercato
920 m
In's
1,1 Km
Coop
1,1 Km
iN's
1,4 Km
Negozi Negozi
Negozi
470 m
Panificio Bardi
1,4 Km
Panetteria da Sonia
1,4 Km
Panificio Maritan
1,9 Km
Panificio da Luca
2,1 Km
Bar Bar
Cubic
2,4 Km
La Chiocciola
2,7 Km
Garden Bar
2,8 Km
Esquina de Luxe
2,8 Km
Stendardo
2,9 Km
Ristoranti Ristoranti
Pizzeria Luna
80 m
Bea Storia
120 m
Ristorante Cinese Nuovo Mondo
200 m
Caffè Concerto
260 m
Pizzeria Giallo Grano
320 m
Mostra tutto

Caratteristiche

Rif.:
61133044
Piano:
Su più livelli di 2
Totale piani:
2
Box:
1
Camere da letto:
3
Arredamento:
Parziale
Mostra tutto
Prezzo Prezzo
€ 300.000
Rata mutuo Rata mutuo
€ 1.414 / mese
Spese annue Spese annue
€ 0
Proponi il tuo prezzoProponi il tuo prezzo

Classe Energetica

G
G
G
G
G
G
G
G
G
EP globale non rinnovabile:
562.30 kW h/m² anno
EP globale rinnovabile:
4.20 kW h/m² anno
EP invernale del fabbricato:
EP estiva del fabbricato:
Anno di costruzione:
1970
Riscaldamento:
Autonomo
Tipo impianto:
A radiatori
Tipo alimentazione:
Metano

Prezzo ridotto di €1 (11%%)

Ti interessa visionare l'immobile?

Fissa un appuntamento  Fissa un appuntamento

Richiedi informazioni

Clicca su Leggi per aprire l'informativa
* Questi campi sono obbligatori

Calcola il tuo mutuo

Semplice e senza impegno
Anticipo

( % )
Mutuo

( % )

pochi semplici passi

inserisci i tuoi dati
Questionario completato
Grazie per aver richiesto un appuntamento senza impegno con un nostro Consulente del Credito e Assicurativo.

Hai inserito correttamente tutti i dati necessari e a breve riceverai una e-mail con un link da convalidare per inviare i tuoi dati.
Affiliato
Mes3 Sas
Via San Donà, 101 30124 Venezia (VE)

Il nostro staff


  • Alberto Boni
    Collaboratore

  • Enrico Causin
    Responsabile

  • Matthew De Rossi
    Collaboratore

  • Panfilo Ginestra
    Collaboratore

  • Jacopo Mura
    Affiliato

  • Ilaria Pellizzaro
    Coordinatrice
Via San Donà, 101 30124 Venezia (VE)
Zona: Venezia-Mestre-Carpenedo
Mostra su mappa
Affiliato
Mes3 Sas
Via San Donà, 101 30124 Venezia (VE)

2026 Tecnocasa Franchising S.p.A. - P. IVA 08365160152 - Via Monte Bianco 60/A 20089 Rozzano (MI). Ogni agenzia ha un proprio titolare ed è autonoma. Privacy policy | Policy utilizzo | Cookie policy