Villa singola in vendita

Venezia, Via Arno - Carpenedo
€ 335.000
3 locali 3 locali
190 Mq 190 Mq
2 bagni 2 bagni

Villa singola in vendita

Venezia, Via Arno - Carpenedo

Descrizione annuncio

A Carpenedo, in una tranquilla laterale di via Rielta, proponiamo in vendita una casa indipendente con giardino privato, disposta su due livelli e situata in una posizione strategica, ben servita dai mezzi pubblici che collegano agevolmente con Venezia e il centro di Mestre.

L'abitazione, circondata da un ampio giardino ideale per famiglie con bambini o per chi cerca tranquillità, è accessibile tramite un comodo cancelletto pedonale.

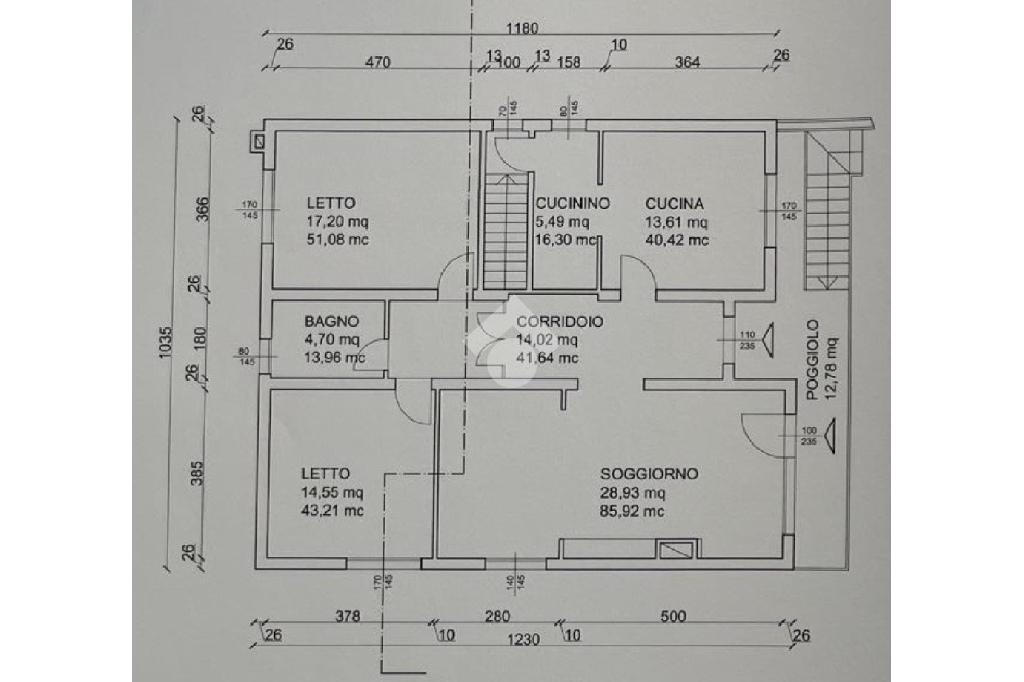
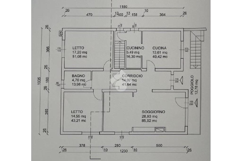
Attraverso una scala esterna, grazie a una gradinata adornata da edera, si accede al primo piano, dove si apre una splendida terrazza abitabile esposta a est, perfetta per godere della colazione o di pasti all'aperto durante la bella stagione. L'ingresso porta alla zona giorno, composta da un luminoso soggiorno con caminetto e da una cucina separata con cucinotto, collegata internamente al piano terra da una scala dotata di montascale per persone con difficoltà motorie.

La zona notte si sviluppa attraverso un comodo disimpegno ed è composta da due camere matrimoniali (di circa 15 e 18 mq), collocate una di fronte all'altra e un bagno finestrato. Vi è inoltre la possibilità di ricavare una terza camera sfruttando parte dell'ampio soggiorno di 30 mq.

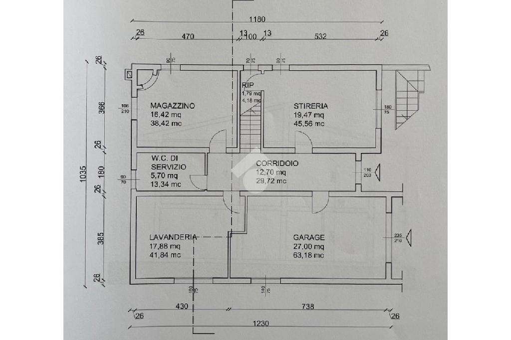
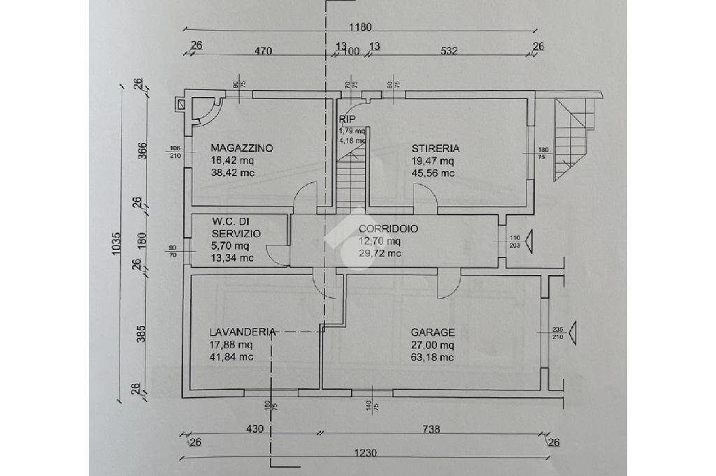
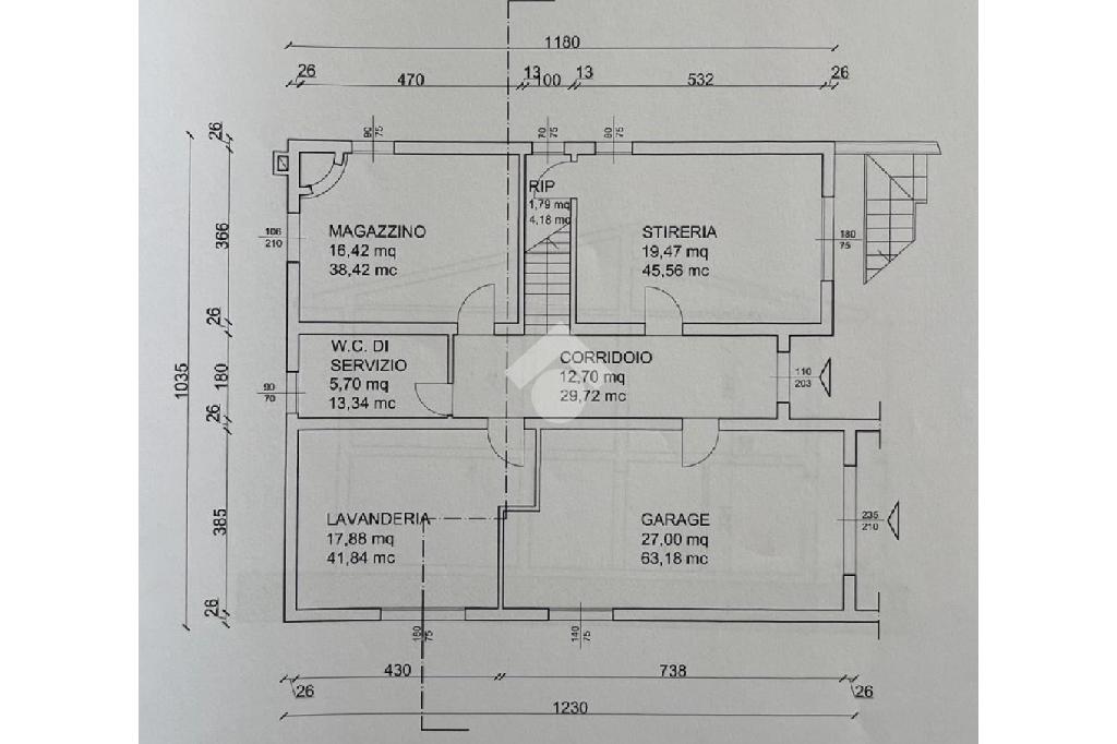
Il piano terra, non abitabile, è accessibile mediante scala interna ma anche direttamente dall'esterno e si sviluppa con ambienti spaziosi e funzionali: un ingresso conduce a una prima stanza adibita a stireria di circa 20 mq, seguita da una grande taverna con un secondo caminetto, perfetta per momenti di convivialità. Completano il piano una lavanderia di circa 18 mq, un bagno finestrato e un ampio garage di 27 mq, accessibile anche internamente, adatto ad ospitare auto di grandi dimensioni e oggetti di uso quotidiano.

La casa, che attualmente si presenta in ottimo stato conservativo, è stata oggetto di revisione del tetto circa 10 anni fa e della caldaia, sostituita 8 anni fa.

A valorizzare ulteriormente la proprietà, un giardino sul retro, riservato e silenzioso, poiché affacciato su una strada chiusa al traffico.

Questa soluzione rappresenta un'ottima opportunità per chi desidera indipendenza, ampi spazi sia interni che esterni e una posizione comoda ma al contempo riservata, perfetta per vivere in serenità senza rinunciare ai servizi.

Mostra tutto

Nelle vicinanze

Trasporto pubblico Trasporto pubblico
Venezia Carpenedo
Venezia Carpenedo
910 m
stazione di Venezia Mestre Ospedale
stazione di Venezia Mestre Ospedale
2,7 Km
Serravalle
Serravalle
180 m
Oberdan
Oberdan
350 m
Via Rielta 1/2
Via Rielta 1/2
130 m
Ricariche auto elettriche Ricariche auto elettriche
Mestre Garibaldi | EnelX
640 m
Parcheggio scambiatore Santa Maria dei Battuti | EnelX
890 m
Parcheggio Santa Maria dei Battuti | EnelX
1,0 Km
EnelX EVA+ Mestre Park and Ride
1,0 Km
Mestre Parco Ponci | EnelX
1,2 Km
Scuole Scuole
Istituto Comprensivo Statale "Lazzaro Spallanzani": Scuola Secondaria di I Grado Giovanni Bellini
280 m
Enrico Toti
300 m
Liceo Artistico Statale "Michelangelo Guggenheim" (succursale di via Rielta)
340 m
Scuola primaria J. Tintoretto
550 m
Liceo Scientifico Statale "Giordano Bruno"
610 m
Farmacia Farmacia
Farmacia Ca' Rossa
200 m
Farmacia al Doge
300 m
Farmacia Alla Provvidenza
350 m
Farmacia Rialto
520 m
Farmacia alla Madonna
540 m
Ospedali Ospedali
Policlinico San Marco
1,1 Km
Pronto Soccorso Ospedale dell'Angelo
2,9 Km
Ospedale dell'Angelo
3,0 Km
Supermercati Supermercati
Eurospesa
320 m
Coop
460 m
Cadoro
680 m
iN's mercato
750 m
In's
820 m
Negozi Negozi
Negozi
570 m
Panificio da Luca
790 m
Panificio Maritan
820 m
Pam Local
830 m
Panetteria da Sonia
950 m
Bar Bar
La Chiocciola
1,3 Km
Garden Bar
1,4 Km
Esquina de Luxe
1,4 Km
Stendardo
1,5 Km
Bar Galleria
1,6 Km
Ristoranti Ristoranti
Sushi Long
290 m
Piaceri in Tavola
340 m
Bio Osteria PLIP
370 m
Pizzeria da Michele
550 m
Osteria Da Luca
610 m
Mostra tutto

Caratteristiche

Rif.:
61118677
Piano:
1 di 1 (Piano su più livelli)
Box:
1
Posti auto:
1
Terrazzi:
1
Camere da letto:
2
Mostra tutto
Prezzo Prezzo
€ 335.000
Rata mutuo Rata mutuo
€ 1.561 / mese
Spese annue Spese annue
€ 0
Proponi il tuo prezzoProponi il tuo prezzo

Classe Energetica

F
F
F
F
F
F
F
F
F
EP globale non rinnovabile:
219.00 kW h/m² anno
EP globale rinnovabile:
2.10 kW h/m² anno
EP invernale del fabbricato:
EP estiva del fabbricato:
Anno di costruzione:
1962
Riscaldamento:
Autonomo
Tipo impianto:
A radiatori
Tipo alimentazione:
Metano

Ti interessa visionare l'immobile?

Fissa un appuntamento  Fissa un appuntamento

Richiedi informazioni

* Questi campi sono obbligatori

Calcola il tuo mutuo

Semplice e senza impegno
Anticipo

( % )
Mutuo

( % )

pochi semplici passi

inserisci i tuoi dati
Questionario completato
Grazie per aver richiesto un appuntamento senza impegno con un nostro Consulente del Credito e Assicurativo.

Hai inserito correttamente tutti i dati necessari e a breve riceverai una e-mail con un link da convalidare per inviare i tuoi dati.
Affiliato
Mes3 Sas
Via San Donà, 101 30124 Venezia (VE)

Il nostro staff


  • Alberto Boni
    Collaboratore

  • Enrico Causin
    Responsabile

  • Matthew De Rossi
    Collaboratore

  • Panfilo Ginestra
    Collaboratore

  • Jacopo Mura
    Affiliato

  • Ilaria Pellizzaro
    Coordinatrice
Via San Donà, 101 30124 Venezia (VE)
Zona: Venezia-Mestre-Carpenedo
Mostra su mappa
Affiliato
Mes3 Sas
Via San Donà, 101 30124 Venezia (VE)

2025 Tecnocasa Franchising S.p.A. - P. IVA 08365160152 - Via Monte Bianco 60/A 20089 Rozzano (MI). Ogni agenzia ha un proprio titolare ed è autonoma. Privacy policy | Policy utilizzo | Cookie policy